鈴鹿市国府町 売中古戸建住宅
| 物件種目 | 戸建住宅 |
|---|---|
| 所在地 | 鈴鹿市国府町 |
| 交通 | 三交バス 国府停 徒歩2分 |
| 坪単価 | 万円/坪 |
| 土地面積 | 330.87m² 100.08坪 |
| 地目/現況 | 宅地 / 宅地 |
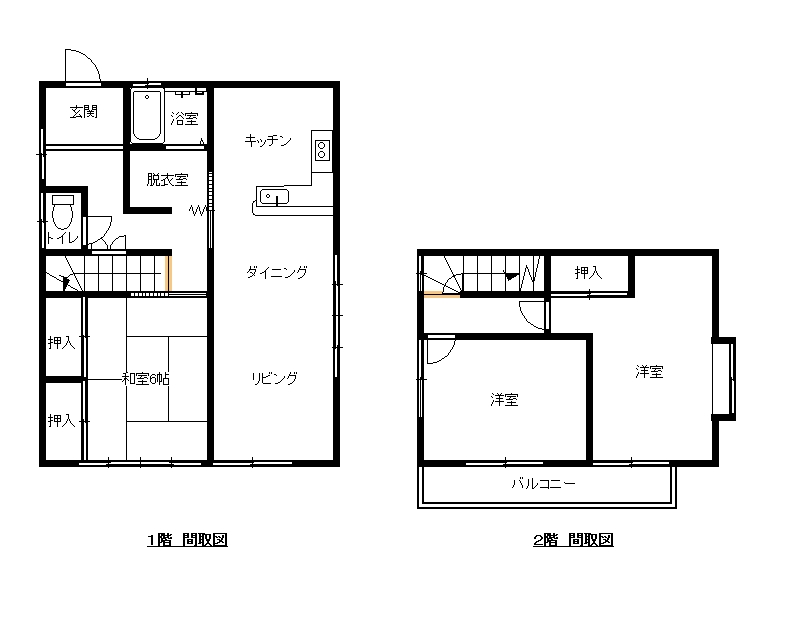
| 建物面積 | 81.15 m² 24.54 坪 | 間取 | 3LDK |
|---|---|---|---|
| 構造 | 木造瓦葺2階建 | 築年 | 平成2年11月 |
| 都市計画 | 市街化調整区域 | 用途地域 | 指定なし |
| 建蔽率 | 70% | 容積率 | 200% |
| 接道 | 北:約1.8 - 2.1m(2項道路) | 私道負担 |
| 設備/施設 | 公営水道、簡易水洗(汲取) |
|---|---|
| 駐車場 | 有 |
| 引渡時期 | 相談 |
| 周辺施設 | 国府小学校(約450m)、国府幼稚園(約850m) 平田野中学校(約600m)、ミニストップ(約850m) |
| 備考 | 現況有姿渡し。 建物解体更地渡しについては要相談。 60条証明書の取得にて専用住宅建て替え可能です。 前面道路は、再建築時にセットバックが必要です。 別棟物置あり。 |
| 取引態様 | 媒介 |
| 手数料 | 3%+6万円+消費税 |
| 情報更新日 | 2026年4月 1日 |














